In 2016, the first phase of the school’s expansion began with the construction of a new sports hall and covered playground housed in a green volume. The media room, sanitary facilities, and entrance are contained within an orange box, while the vertical technical core is highlighted in yellow. The use of color brings vibrancy to the dull, densely built environment and, above all, improves spatial legibility.
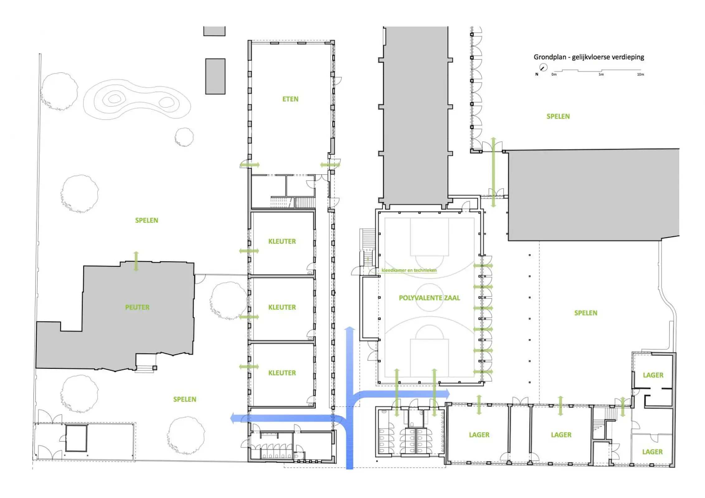
The primary school continues to grow. Five years after the first expansion and renovation phase, a new flexible, multipurpose building has been added as a linking module and transition zone between two separate wings. The upper floor contains two classrooms and a multipurpose room, while the ground floor houses an enclosed covered playground, sanitary facilities, and two kindergarten classrooms.















