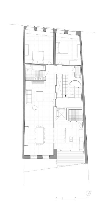
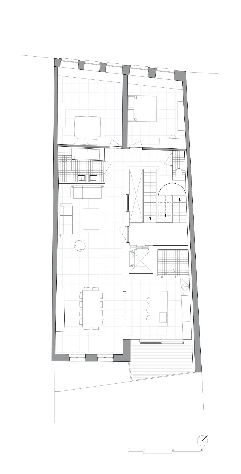
A 16th-century front and rear house were merged at the end of the 18th century in a classic Rococo style. In the 20th century, the building was converted into the Snijschool (cutting and sewing school), during which it was completely silted up. The dilapidated building has been thoroughly renovated into two offices and two residential units. The original layout of the front and rear houses has been respected. The historic oak grilles and plastered mantelpieces have been preserved and restored. At the centre of the building, a new vertical light well around which the stairs circulate brings natural light to the ground floor. The 20th-century incision with the large “SNIJSCHOOL” window has been retained, but the vertical windows have not been reconstructed. In the rear façade, the old rear house is still present on one side, with a new wooden infill with large windows and terraces next to it, giving a contemporary touch to the living and office spaces.
Snijschool
Oudenaarde
- Type:Transition: mulithousing and offices
- Architect:AiT + Benoit Ottevaere
















