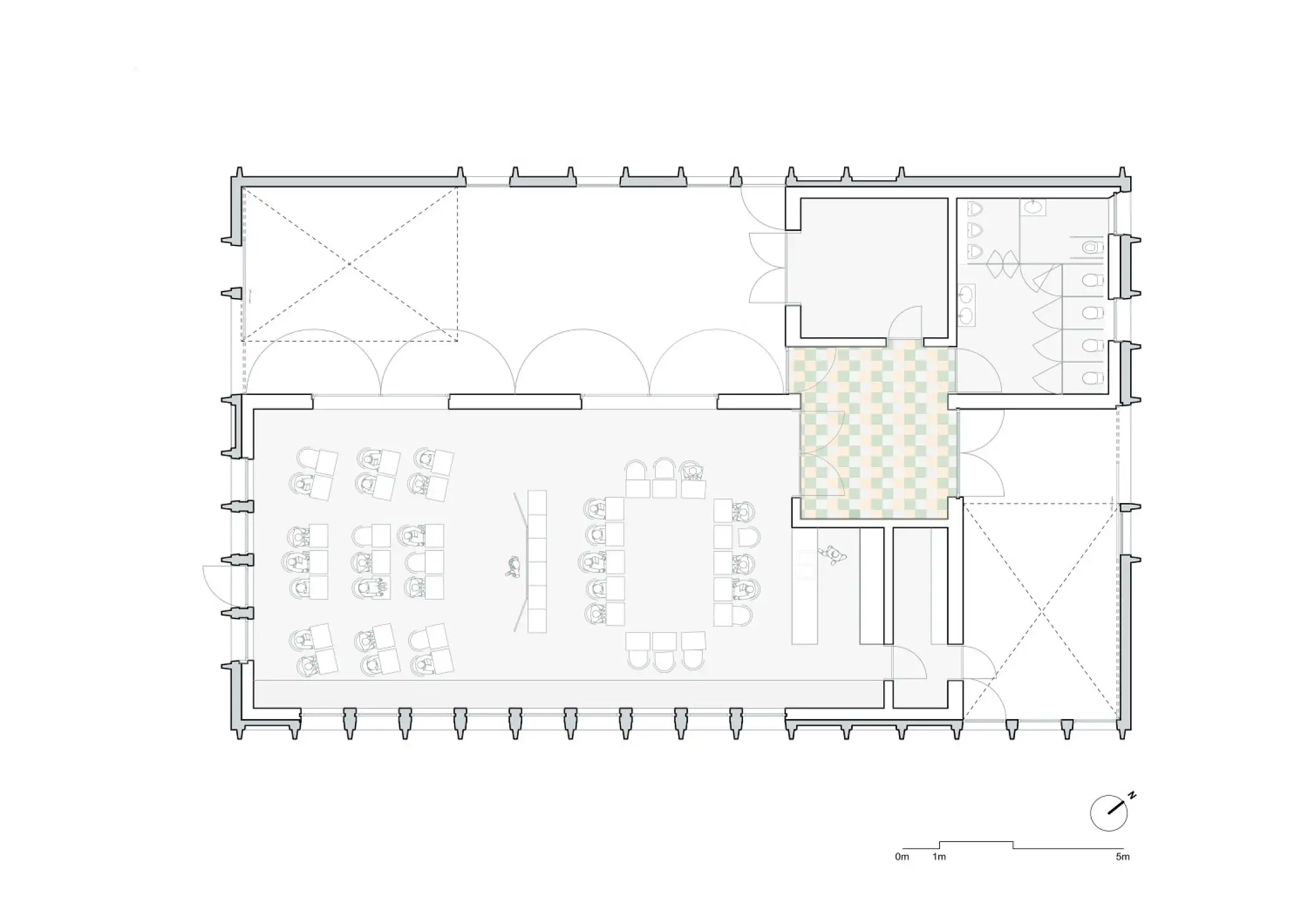
Dit voormalig schooltje van het gemeenschapsonderwijs kan als een prototype dienst doen hoe men circulair kan transformeren. De belangrijkste ingreep zijn de patio’s die een schakel vormen tussen het omringende park en het gebouw. Het gebouw flirt met de grenzen tussen binnen en buiten. De binnen- en buitenruimtes vormen een flexibel kader die de gebruikers multifunctioneel kunnen invullen als tentoonstellingsruimte, als buurtcentrum, voor plaatselijke verenigingen, voor naschoolse opvang…
Het nieuwe centrum is bijna energieneutraal en dus duurzaam en ecologisch getransformeerd met een doorgedreven circulariteit tijdens af- en opbouw. De funderingen en buitenschil werden gerecupereerd. De betonbalken zijn opnieuw gebruikt als waterdoorlatende verharding, als banken, als verlichtingspaal. De onderfundering van de voormalige koer is gebruikt voor de meanderende keermuren met muurbegroeiing. Dit project is een samenwerking met murmuur architecten waar eenvoud en praktische wendbaarheid samengaan.


















